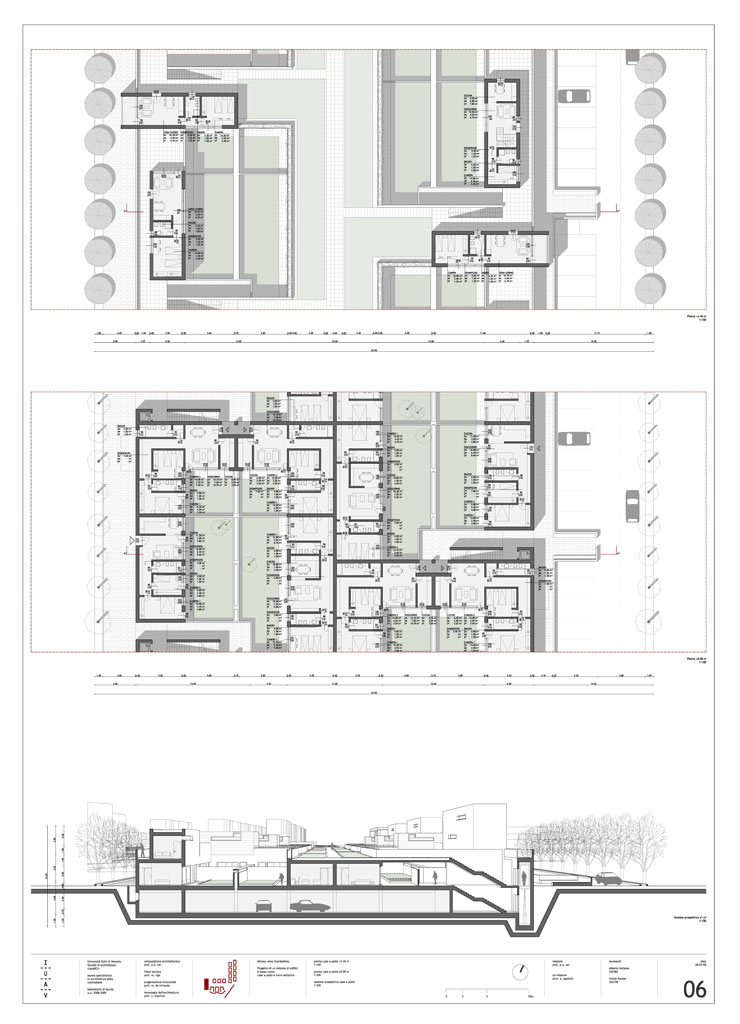
PROGRAMMA: edifici residenziali a basso costo, torre abitativa e case a patio
TIPOLOGIA: tesi universitaria
PROGETTO: alberto bottene, nicola fiorese
Home
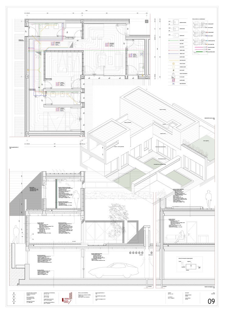
PROGRAMMA: edifici residenziali a basso costo, torre abitativa e case a patio
TIPOLOGIA: tesi universitaria
PROGETTO: alberto bottene, nicola fiorese