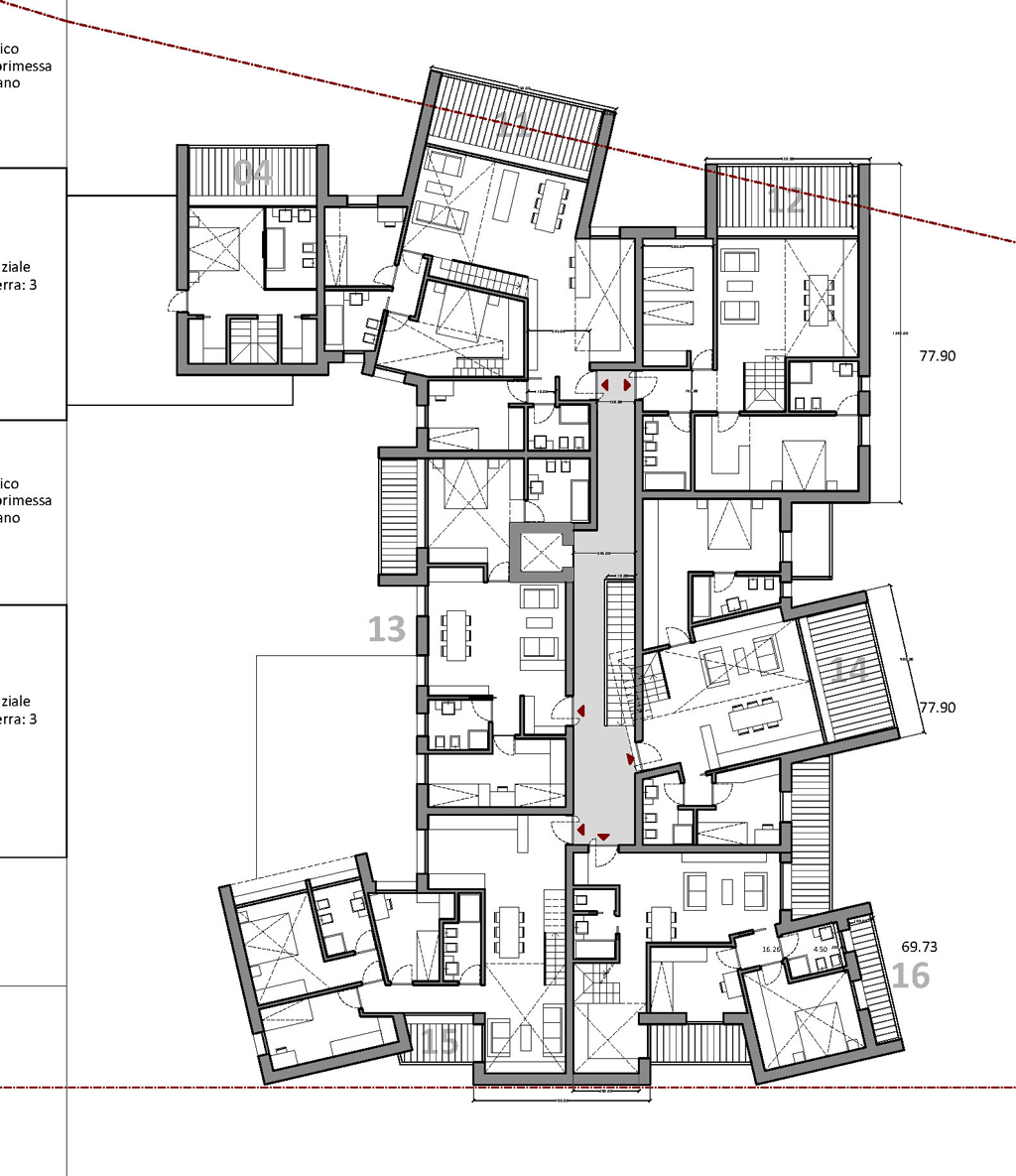
PROGRAMMA: edificio residenziale a Schio(VI)
TIPOLOGIA: progetto definitivo
PROGETTO: molinaro architettura, alberto bottene
Home
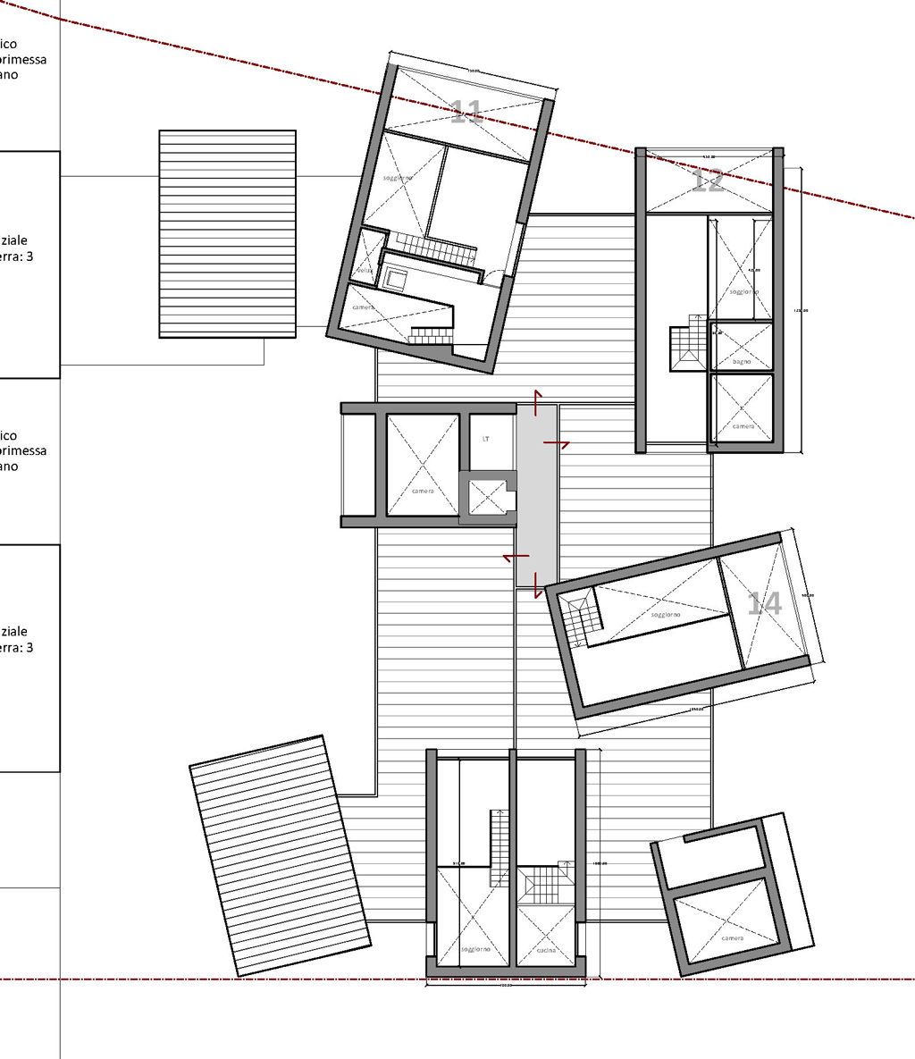
PROGRAMMA: edificio residenziale a Schio(VI)
TIPOLOGIA: progetto definitivo
PROGETTO: molinaro architettura, alberto bottene