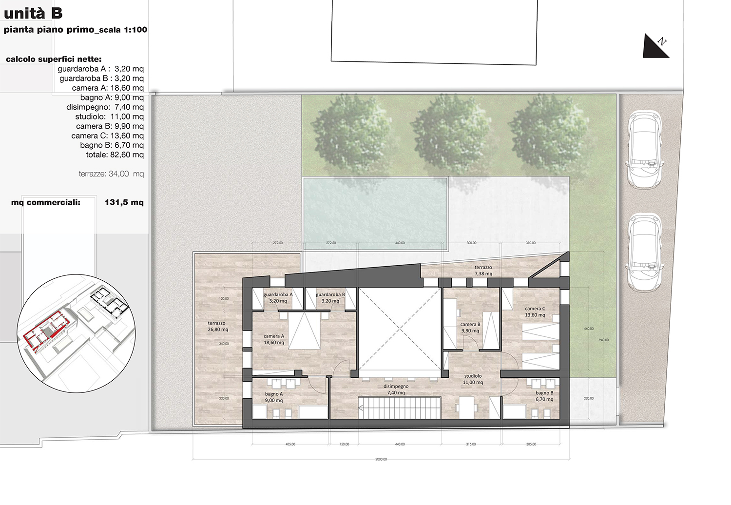
PROGRAMMA: due unità indipendenti
TIPOLOGIA: progetto preliminare
PROGETTO: alberto bottene, giulio mari
La scelta di proporre due unità singole nasce da criteri di valutazione sia economici che funzionali. Il terreno di via Cà Bottara infatti trovandosi in posizione limitrofa alla zona storica della città offre la possibilità di godere della vita cittadina e di usufruire dei servizi del centro senza bisogno dell’auto. Allo stesso tempo, trovandosi in un tessuto consolidato di case su lotto, la proposta di costruire delle unità singole ben si integra con l’intorno.
Queste due caratteristiche portano ad una proposta esclusiva, che vuole essere una reinterpretazione contemporanea di “villa in centro”. La doppia altezza centrale che caratterizza entrambe le unità diviene il manifesto di questo nuovo contesto signorile.
Rispetto alle altre tipologie analizzate è inoltre possibile evitare la costruzione di piani interrati, la qual cosa diviene un vantaggio sia sul piano economico che su quello funzionale.
Infine, la proposta di costruire con tecnologia in legno offre grandi vantaggi in termini di risparmio energetico, garanzia del prodotto, eco-sostenibilità, velocità di esecuzione e comfort.










